Jump to content

Welcome to RennTech.org Community, Guest

There are many great features available to you once you register at RennTech.org
You are free to view posts here, but you must log in to reply to existing posts, or to start your own new topic. Like most online communities, there are costs involved to maintain a site like this - so we encourage our members to subscribe or donate. All subscriptions and donations go to the costs operating and maintaining this site. We prefer that guests take part in our community and we offer a lot in return to those willing to join our corner of the Porsche world. This site is 99 percent member supported (less than 1 percent comes from advertising) - so please consider an annual subscription or donation to keep this site running.

Here are some of the features available - once you subscribe RennTech.org

  • View Classified Ads
  • DIY Tutorials
  • Porsche TSB Listings (limited)
  • VIN Decoder
  • Special Offers
  • Paint Codes
  • Registry
  • Videos System
  • View Reviews
  • and get rid of this welcome message

It takes just a few minutes to register, and it's quality Porsche information at a low cost.

Contributing Members also get these additional benefits:
(you become a Contributing Member by subscribing or donating money to the operation of this site)

  • No ads - advertisements are removed
  • Access the Contributors Only Forum
  • Contributing Members Only Downloads
  • Send attachments with PMs
  • All image/file storage limits are substantially increased for all Contributing Members
  • Option Codes Lookup
  • VIN Option Lookups (limited)

Recommended Posts

Posted

Good Evening All:

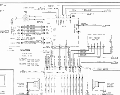
I'm trying to replace a 4 X 40 amplifier that I had in my 97 Boxster with a 6 X 40 watt amplifier made in Sweden by Nokia. The specific model number is: 996.645.301.01 -- This unit came from a 996 Coupe w/model #M490. The Nokia part # is: 49134 70158/6. I'm not sure if this will help -- the date on the unit is: W806. I'm not sure how to decipher the date on here.

I was looking at a couple of previous posts (dated back in March, 2007) and I wasn't sure if those wiring diagrams applied to this amplifier. If anybody has any information, I would greatly appreciate it.

Regards,

Stuart Gonzales

stu132u on RennTech.org

stu132u@aol.com

(423) 400 0914, cell

Posted
post-1-1194621582_thumb.png

Thanks for the pictures to the wiring diagram -- I guess what I really need is the daigram to the pin placement on the actual amplifier. I'm not sure if the smaller (black plug) is different (it fits perfectly), but I am in need of the larger white/clear plug pin placement. The wiring diagram shows the specific speaker that each set of wires links up to, but the schematic of the amplifier is necessary in this case. Thanks in advance for your help!

Regards,

Stuart Gonzales

stu132u on RennTech.org

stu132u@aol.com

(423) 400 0914, cell

PS Specifications on the Porsche: 1997 Porshce Boxster, 2.5L manual transmission, car built for US.

  • 6 years later...
Posted

Loren - Do you happen to have the circuit board schematic for the 6x40 Nokia amp?  I have a local service trying to repair my amplifier and have forwarded the diagram you provided because I thought they just needed pin assignments, but they also do not have the internal specifics.  BTW, the Becker Autosound people in NJ have been entirely unhelpful in this endeavor, simply saying they do not have this model amplifier available for exchange.

  • Admin
Posted

Loren - Do you happen to have the circuit board schematic for the 6x40 Nokia amp?  I have a local service trying to repair my amplifier and have forwarded the diagram you provided because I thought they just needed pin assignments, but they also do not have the internal specifics.  BTW, the Becker Autosound people in NJ have been entirely unhelpful in this endeavor, simply saying they do not have this model amplifier available for exchange.

 

What is the exact model and year of the car the amp came from?

Posted

Thank you, Loren, for this diagram, but I'm afraid that's still just the inputs and outputs of the amplifier in relation to the vehicle.  What I was looking for was a schematic for the internals of the amplifier itself, which is likely proprietary and available only from Nokia or Harmon.  However, I doubt they're going to give them up, which is why I tried you first.

  • Admin
Posted

Porsche replaces sub-assemblies so I doubt they ever had them either. If an amp (or immobilizer, or other control unit, etc., etc.) fails - Porsche just replaces the whole box.

You could try a few salvage yards or just replace it with a 3rd party newer style amp.

Posted

Thank you, Loren, but being both cheap AND an engineer, I am genetically predisposed to "fixing" things.  However, I am also a realist and have a line on a similar amp locally if I can't get Nokia or Becker to cough up the schematic.

Posted

Thank you, I would definitely be interested if the one I've sourced locally doesn't work out.  However, both the seller of this other amp and myself are traveling until Thanksgiving, so I won't know anything for three weeks or so.  May I get back to you then?

Posted

Wow, that seems like WAY more work than necessary.  Sort of like doing it just to prove he could do it.  Regardless, I shifted gears about halfway through this topic and we're now talking about a '99 Carerra coupe, instead of the original '97 Boxster.  Just FYI, HAES is Harman, which purchased the Nokia amp division in the late '90's.  Their amps were re-branded HAES, but are the same designs (this from the people at Becker Autosound).

  • 1 month later...
Posted

This is an update on my search for a 6-channel Nokia amp . . .  A local (Phoenix) audio repair shop found a blown power capacitor and some damaged traces in my head unit (Becker CR-210).  I know from past experience (NAD 3020) that the oil in old capacitors will degrade and sometimes leak over time, so perhaps this will become a systemic problem with the Becker units as they age.  Anyway, once repaired, the system was reconnected using my original amp (which was somehow determined to be "bad" by the same audio shop) and everything works great.  The head unit was not originally suspect since the LCD screen was constantly showing current and correct information, plus without a power light on the amp - and my crack audio shop swearing it was bad - I went down the path of repairing or replacing the amp, but it wasn't necessary.  Many thanks to Dharn55 for the offer of his amp.

Create an account or sign in to comment

You need to be a member in order to leave a comment

Create an account

Sign up for a new account in our community. It's easy!

Register a new account

Sign in

Already have an account? Sign in here.

Sign In Now
×
×
  • Create New...

Important Information

We have placed cookies on your device to help make this website better. You can adjust your cookie settings, otherwise we'll assume you're okay to continue.